Resumen
Descripción
En VELCASA – Profesionales inmobiliarios te presentamos esta excelente oportunidad de inversión en rentabilidad situada en el prestigioso Edificio Renta Sevilla, ubicado en la Avenida de la Innovación, uno de los principales ejes empresariales y tecnológicos de Sevilla capital.
Ubicación destacada
Características principales:
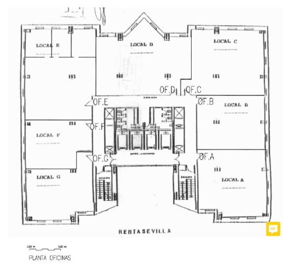
- Superficie total: 1.029 m².
- Distribuido en 7 módulos de oficina, con espacios amplios y configurables.
- Activo alquilado a una empresa de reconocido prestigio, lo que garantiza estabilidad y seguridad a largo plazo.
- Incluye 10 plazas de garaje, un valor añadido fundamental en esta zona de alta actividad empresarial.
Ideal para: inversores que buscan un activo corporativo con contrato estable, excelente ubicación y rentabilidad sostenida, dentro de un edificio emblemático del sector empresarial sevillano.
Ventajas destacadas:
- Inmueble con inquilino consolidado, que aporta seguridad en los flujos de ingresos.
- Ubicación estratégica en un eje empresarial de primer nivel.
- Oficinas distribuidas en módulos, lo que facilita futuras redistribuciones o explotación por unidades.
- Aparcamiento incluido, imprescindible en la zona.
Entorno:
El Edificio Renta Sevilla, situado en la Avenida de la Innovación, se encuentra en un enclave empresarial estratégico dentro del entorno de Sevilla Este, muy próximo a Calonge, Sevilla Este Tecnológico, el Palacio de Congresos (FIBES) y los accesos directos a la A-4 y la SE-30.
La zona destaca por su alto nivel de actividad, con presencia de empresas tecnológicas, administrativas, de formación y servicios corporativos. Además, dispone de una amplia oferta de restauración, comercios, hoteles, transporte público y centros de negocios, consolidándose como uno de los polos empresariales más activos y modernos de la ciudad.
¿Quieres más información o analizar su rentabilidad?
Contáctanos sin compromiso. Te ofreceremos un estudio personalizado y te acompañaremos en todas las fases del análisis y la inversión.
¿Este inmueble no encaja con lo que buscas?
Pregúntanos por otras opciones. Disponemos de una amplia cartera de oficinas y activos en rentabilidad en Sevilla y su área metropolitana, muchos no publicados.
En VELCASA, nuestro conocimiento a tu servicio.







