Resumen
Descripción
En VELCASA – Profesionales inmobiliarios te presentamos esta excelente oportunidad situada en Calle Castilla y León 251, dentro del Polígono Industrial Los Llanos en Salteras (Sevilla). Un espacio profesional con gran visibilidad, perfecto para empresas que buscan un entorno funcional y bien comunicado.
Ubicación destacada
Características principales:
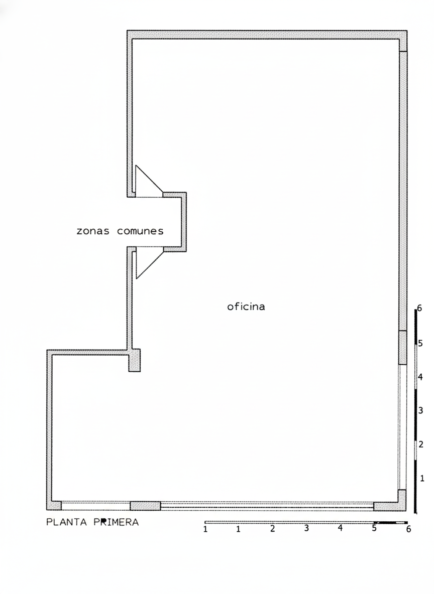
- 146 m² construidos.
- Distribuida en dos amplias zonas de trabajo, dos despachos individuales y un pequeño almacén.
- Espacio con gran visibilidad y fácil aparcamiento en el entorno inmediato.
- Ideal para combinar áreas de trabajo operativo con zonas de dirección o atención al cliente.
Ideal para: empresas de servicios, estudios técnicos o profesionales que necesiten una oficina representativa, con buena accesibilidad y situada en un entorno empresarial en crecimiento.
Ventajas destacadas:
- Distribución funcional y adaptable a diferentes tipos de negocio.
- Visibilidad destacada desde el exterior.
- Facilidad de aparcamiento para empleados y clientes.
- Ubicada en una zona industrial consolidada y en expansión.
Honorarios de Agencia Inmobiliaria, IVA y otros gastos o impuestos, no incluidos en el precio.
Entorno:
El Polígono Industrial Los Llanos, en Salteras, se ha convertido en una de las principales áreas de crecimiento empresarial del Aljarafe sevillano. En los últimos años, la zona ha experimentado una importante reactivación, con la llegada de nuevas empresas, la renovación de instalaciones y la mejora de sus infraestructuras.
Su excelente conexión con la A-66 (Autovía de la Plata) y la SE-30 lo posicionan como un enclave estratégico para empresas que buscan proximidad con Sevilla capital y fácil acceso a otros núcleos industriales como Camas, Gines o Valencina de la Concepción.
El entorno combina actividad industrial y de oficinas, con buena disponibilidad de servicios y un entorno tranquilo y operativo.
¿Quieres más información o visitarla?
Contáctanos sin compromiso. Te asesoraremos para que tomes la mejor decisión y, si lo deseas, presentaremos una propuesta personalizada al propietario.
¿Este inmueble no encaja con lo que necesitas?
Pregúntanos por otras opciones. Trabajamos con una amplia cartera de oficinas, locales y naves en Sevilla y su área metropolitana, muchas no publicadas.
En VELCASA, nuestro conocimiento a tu servicio.








