Resumen
- Solares y terrenos, Terreno industrial, Terreno Urbano
- Categoría
- 40.229 m2
- Dimensiones de propiedad
- 46.854 m2
- Dimensiones de finca
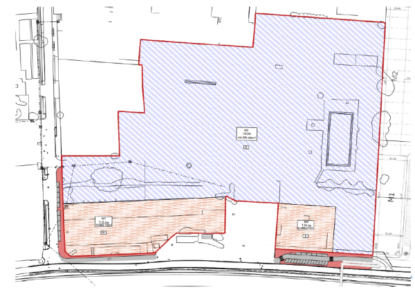
Descripción
46.854 m² y 40.229 m² de edificabilidad.
- Uso: suelo urbano no consolidado de uso industrial y terciario comercial.
- Información del activo: PB + II (10m) para uso industrial. Suelos provenientes de la Modificación del PGOU de Alcalá de Guadaira que recalificó estos suelos localizados en el Polígono Industrial “La Red”, cambiando el uso de deportivo privado a Industrial Comercial (AD en 2006). En desarrollo de dicha Modificación se tramitó PERI UE-79 P. I. La Red, en 2010.
- Zona: terreno en calle La Red Dos en el Polígono La Red en Alcalá de Guadaíra, Sevilla.
- Conectividad: El Polígono Industrial La Red , situado en Alcalá de Guadaíra (Sevilla), es uno de los principales núcleos industriales de la región. Destaca por su ubicación estratégica, con excelentes conexiones a través dela A-92 , que facilitan el acceso tanto a Sevilla capital como a otras zonas del sur de España.
Property Id: 21928
Precio: 4.000.000€
Dimensiones de propiedad: 40.229 m2
Dimensiones de finca: 46.854 m2
Referencia propiedad: 05725
Garaje: No disponible
Tamaño del garaje: No disponible
Sáb
14
Mar
Dom
15
Mar
Lun
16
Mar
Mar
17
Mar
Mié
18
Mar
Jue
19
Mar
Vie
20
Mar
Sáb
21
Mar
Dom
22
Mar
Lun
23
Mar
Tus datos
Reseñas
No reviews found.
Tienes que acceder para dejar una reseña
Similares
Terreno rústico en Castilblanco de los Arroyos – Ref. 19924
46.000€
VELCASA – Profesionales inmobiliarios vende un terreno rústico en la Calle Zorzal en Casti ...
5.000 m2details
Terrenos en Área de servicios Km 524 Autovía A-4 – Ref. 13724
2.500.000€
VELCASA – Profesionales inmobiliarios vende un conjunto de terrenos en el Área de Servicio ...
52.033 m2details
Terreno rústico en La Puebla del Río – Ref. 01624
850.000€
Es un conjunto de 3 parcelas catastrales con una superficie total aproximada de& ...
Terreno residencial en Córdoba – Ref. 10625
320.200€
VELCASA – Profesionales inmobiliarios vende un terreno en Barriada de La Alcolea, Córdoba. ...
12.047 m2details








